Дом 103

103 м² · Одноэтажный

от 8 240 000 ₽

Экстерьер проекта дома «Дом 103» площадью 103 м²

Проект современного дома «Дом 103» общей площадью 103 м² от строительной компании «ИЗБА».

Фотография проекта дома «Дом 103» площадью 103 м²

Проект современного дома «Дом 103». Общая площадь здания составляет 103 м².

Фотография проекта дома «Дом 103» площадью 103 м²

Проект современного дома «Дом 103» с общей площадью 103 м².

Фотография проекта дома «Дом 103» площадью 103 м²

Проект современного дома «Дом 103» площадью 103 м². Продуманная планировка и качественные материалы для вашего комфорта от строительной компании «ИЗБА».

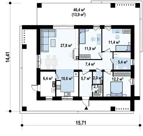
Планировка дома «Дом 103» площадью 103 м²

Схема планировки проекта «Дом 103». Продуманное и функциональное распределение пространства в доме общей площадью 103 м².

Характеристики

Площадь дома/общая площадь
102,9 / 116,8 m²
Площадь застройки
231,0 m²
Площадь кровли
187 m²
Прихожая
5,7 m²
Холл
7,4 m²
Тех. помещение
6,4 m²
Терраса
0,0 m² / 13,9 m²
Гостиная
27,8 m²
Спальня 1
12,2 m²
Спальня 2
11,4 m²
Спальня 3
11,9 m²
Ванная комната
5,4 m²
Санузел
2,0 m²
Гардеробная
2,1 m²
Кухня
10,6 m²

Особенности проекта

  • Оригинальным строение выглядит благодаря большим площадям остекления и сочетанию в экстерьере деревянной обшивки, штукатурки белой и цвета графит.
  • Сохранять порядок в доме позволяет спроектированная у входа просторная гардеробная.
  • Четкое размежевание пространства на зоны обеспечивает комфортное пребывание домочадцев даже во время приема гостей.
  • В левой части дома расположилась уютная дневная зона, объединяющая в одно пространство гостиную, столовую и кухню. Отсюда предусмотрены выходы на террасу, что позволяет чаще наслаждаться отдыхом на природе.
  • Ночная зона представлена тремя комфортными и просторными спальнями и общим санузлом с ванной.

Стоимость строительства

Материал
3 мес.
5 мес.
6 мес.
9 мес.
Отсевоблок
8 240 000 ₽ 11 021 000 ₽ 12 669 000 ₽ 17 407 000 ₽
Газобетон
8 755 000 ₽ 11 536 000 ₽ 13 184 000 ₽ 17 922 000 ₽
Каркасный
8 240 000 ₽ 11 021 000 ₽ 12 669 000 ₽ 17 407 000 ₽
Шлакоблок
9 167 000 ₽ 11 948 000 ₽ 13 596 000 ₽ 18 334 000 ₽
Теплоблок
8 755 000 ₽ 11 536 000 ₽ 11 536 000 ₽ 17 922 000 ₽
Кирпич
10 300 000 ₽ 13 081 000 ₽ 15 656 000 ₽ 19 467 000 ₽
Терраса

Макс. площадь по проекту: 14 м²

Открытая терраса: от 48 000 ₽ / м²

Закрытая терраса (веранда): от 68 000 ₽ / м²

Сроки и стоимости ориентировочные, уточняйте у менеджера по телефону +7 (914) 199-80-43.

Получить смету

Проект «Дом 103»

Оставьте телефон — перезвоним и ответим по срокам и стоимости именно этого дома.

Заявка на расчёт

Телефон обязателен — по нему свяжемся с вами.