Проектирование и строительство домов и коттеджей под ключ в Хабаровске

Сократим расходы на строительство более чем на 20%

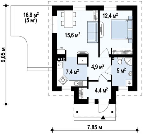
Разработаем проект за 10 дней!

Рассчитаем стоимость готового проекта за 15 минут – БЕСПЛАТНО!

Проектируй дом правильно!

Проведем Вам бесплатную профессиональную консультацию по проектированию Вашего дома.

Почему выбирают компанию «ИЗБА»

Фиксированные цены

Мы не меняем стоимость в процессе работ. Риски, связанные с подорожанием материалов, берем на себя.

Цены ниже конкурентов

В 95% случаев предлагаем заказчику цену строительства дома под ключ ниже, чем другие строители, работающие в Хабаровске и Хабаровском крае.

Собственная строительная техника

Используем собственную профессиональную опалубку и инструмент, глубинные вибраторы для бетона.

20 бригад в штате компании

Узкоспециализированные бригады в штате – залог быстрого выполнения работ любой сложности качественно и в срок.

Специалисты с высшим образованием

Инженеры и прорабы проходят ежегодное обучение. Дипломы и сертификаты мы не скрываем.

Фото и видео отчеты, онлайн‑контроль

Персональный менеджер еженедельно присылает отчеты о работах. По желанию организуем онлайн‑трансляцию с объекта.

В большинстве случаев мы предлагаем заказчику более низкую цену на строительство дома под ключ, чем другие компании в Хабаровском крае и Хабаровске. Это возможно благодаря отсутствию наёмного персонала и использованию собственной техники. Наш штат включает десятки бригад, включая специализированные группы, что гарантирует быстрое выполнение заказов любой сложности. Мы прозрачны в наших действиях и ценим комфорт клиента – персональный менеджер предоставляет регулярные отчёты о работе, а также можем организовать онлайн‑трансляцию с объекта по запросу.

Строительные технологии

Наша компания работает со множеством материалов. Проводим постоянный технический надзор. Работаем даже там, где нет готовых подъездных путей, воды и электричества. С нами можно построить дом под ключ площадью от 100 до 350 квадратных метров за год.

Дом из отсевоблока

Отсевоблок

от 74 000 ₽ за м²

Дом из газобетона

Газобетон

от 79 000 ₽ за м²

Дом из шлакоблока

Шлакоблок

от 74 000 ₽ за м²

Дом из теплоблока

Теплоблок

от 79 000 ₽ за м²

Дом из кирпича

Кирпич

от 94 000 ₽ за м²

Дом из брёвна

Брёвно

от 74 000 ₽ за м²

Дом из бруса

Брус

от 74 000 ₽ за м²

Дом из клеёного бруса

Клеёный брус

от 94 000 ₽ за м²

Каркасный дом

Каркасник

от 79 000 ₽ за м²

При заключении договора на строительство проектируемого дома

Дарим скидку на проект 20%

Мы — не просто компания, занимающаяся проектированием!

Строительная компания «ИЗБА» выполняет полный цикл работ от проекта до строительства с последующим благоустройством территории!

Проектирование

Подготовим для Вас проект Вашего дома!

Снабжение

Комплектуем Ваш проект необходимыми материалами по ценам ниже рыночных!

Строительство

Построим дом согласно проекту!

Ландшафтный дизайн

И благоустройство территории наши специалисты выполнят в кратчайшие сроки!

17 дней или 4 шага

До проекта дома Вашей мечты

Схема 17 дней до проекта
17 дней

Обратная связь

Оставьте номер — перезвоним и ответим на вопросы.

Контакты

Строительная компания «ИЗБА», Хабаровск

  • Телефон +7 (914) 199-80-43
  • Адрес г. Хабаровск, ул. Тургенева, 73, офис 19
  • Режим с 9:00 до 18:00, по предварительной записи
Команда «ИЗБА» — приглашаем в офис